取引態様: 貸し主 共同住宅 7階706号室
〒852-8135 長崎市千歳町1番5号
構造:鉄筋コンクリート造7階建
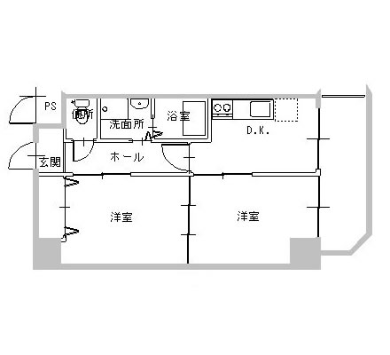
間取:2Dk 床面積:41.5m2 築年数:平成11年
設備:都市ガス・給湯設備・ユニットバス
下駄箱・クローゼット・エアコン・バルコニー
CATV・インターネット(NTT光)引き込み可
その他:火災保険入居者加入
1 件中 1 〜 1 件目を表示しています。
フォーサイト千歳 共同住宅 7階706号室
2026-03-27












